
產品類別:螺旋輸送機系列
產品簡介:用于輸送水泥、粉煤灰、細砂等粉料及細微粒狀干料,采用優質減速箱重型設計,轉矩大、噪音低,一次成型螺旋葉片,雙節距設計,不易堵料,設置有防滲水裝置,可避免雨水滲入引起館內水泥結塊而造成堵料、悶機事故。
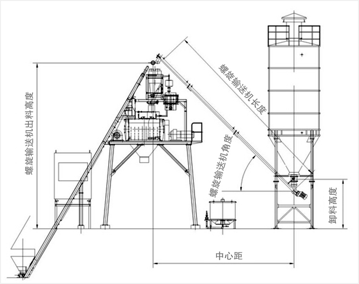
長度:2-12米(可定制) 傾斜角度:≤45°
輸送量:15-80噸/時(水泥) 配套功率:3-22kw
全國統一銷售熱線:0373-268 2333
攪拌站水泥螺旋輸送機視頻
水泥螺旋輸送機該機主要用于物料的輸送,粉煤灰物料、造紙物料、污泥等,還適用于化工、冶金、糧倉加工、倉儲及其它適用螺旋輸送機的場所,該機螺旋體直徑小,轉速高,輸送量大,精度高,輸送工況佳。驅動裝置采用齒輪減速機,具有轉矩大,噪音低,不滲油,壽命長,輸送外殼采用優質無縫管,法蘭連接。LS型系列螺旋輸送機整體剛性好,承載能力大,在輸送時,無論是水平輸送,還是大傾角均可連續輸送,且可隨意選擇工作位置和工作狀態,拆裝修理方便,安全可靠,是新一代理想的產品。

水泥螺旋輸送機型號有100、160、200、250、315、400、500、630、800、1000、1250等常規型號,現貨供應,可根據用戶要求定制化設計。

水泥螺旋輸送機在水泥攪拌站中的應用視頻
水泥螺旋輸送機采用接連式螺旋葉片,制造成形后螺距差小于5mm且葉片外表光滑,可確保物料運輸均勻,另外,水泥輸送機對超載比較敏感,其螺旋軸的螺距采取變螺距設計,可防止物料超載堵塞現象。

水泥螺旋輸送機適用于化工、冶金工業企業和造紙、建筑工程等行業的散裝物料的輸送,如水泥、煤粉、炭黑、純堿、面粉及糧食谷物和紙漿等。適合水平或小于20°傾角布置。


水泥螺旋輸送機布局次序為:電動機、減速機、輸入節總成、中間節及中心支座體總成、輸出節總成、前支座體總成、注油光滑體系、附件為電纜線、銜接用帆布凹、吊掛用鋼絲繩及配用件等。

1、選用優質進口高強耐磨鋼制造的接連式螺旋葉片,制造成形后螺距差錯小于5mm且葉片外表光滑,確保了物料運送的均勻、穩定性,然后確保了物料計量的重復精度。
2、接連式螺旋葉片制做時選用了冷作硬化的外表冷軋處置,硬度和耐磨性比通常葉片進步一倍左右,外沿硬度可達HB240。
3、前、后節螺旋葉片為疏、密兩種螺距,有用防止堵管。俗稱"吃的少,吐的快。葉片的高精度制做確保了物料運送時充溢管體,用戶從螺旋輸送機進料口帆布套的吸扁狀況便能判別螺旋輸送機的好壞。
4、螺旋機內軸在必定距離內都設置有中心吊軸承一撐持內軸旋轉,中心吊軸承座多選用鑄鋼或鑄鋁資料,單懸臂式支座體,使前后節聯接處葉片中止距離更小,物料過流截面化,使料流順利無阻止。
5、螺旋輸送機進料口與水泥倉口銜接方法分為:球鉸法蘭剛性銜接和吊掛加防水帆布軟銜接二種方式。可視設備拆裝頻頻程度決議接口方式。
6、前支座體特別規劃,使正常作業時螺旋內軸受力為拉力,其拉力由前支座內的推力軸承承當,防止減速機和中吊軸座受壓、防止螺栓軸受壓力所發生的掃膛表象。

| 型號/規格 | 165 | 219 | 273 | 325 | 426 |
| 螺旋體直徑(mm) | 140 | 190 | 250 | 290 | 390 |
| 外管直徑(mm) | 165 | 219 | 273 | 325 | 426 |
| 允許角度(°) | 0-60 | 0-60 | 0-60 | 0-60 | 0-60 |
| 長度(m) | 12 | 12 | 12 | 12 | 12 |
| 能力(T) | 10 | 30 | 50 | 80 | 110 |
| 電機功率(kw) | 2.2-15 | 2.2-22 | 3-22 | 5.5-22 | 5.5-22 |
| 外管厚度(mm) | 3-8 | 3-8 | 3-8 | 4.8 | 4.8 |
| 旋葉厚度 | 2-20 | 2-20 | 3-20 | 3-20 | 3-20 |
| 減速機速比 | 1:5 | 1:5 | 1:7 | 1:10 | 1:10 |
| 轉速(轉/分鐘) | 288 | 288 | 205 | 144 | 144 |

布袋聯接方式
| 尺寸 | LSY100 200 | LSY140 | LSY160 | LSY200 | LSY250 | LSY300 | LSY350 | LSY400 | |
| D | 114(133) | 168 | 194 | 219 | 273 | 325 | 355 | 402 | |
| d | 20 | 20 | 30 | 30 | 36 | 36 | 36 | 40 | |
| d1 | M16 | M16 | M20 | M20 | M24 | M24 | M24 | M30 | |
| d2 | 20 | 20 | 30 | 30 | 36 | 36 | 36 | 40 | |
| L | 223 | 249 | 294 | 319 | 403 | 455 | 485 | 542 | |
| L1 | 157 | 179 | 218 | 243 | 303 | 355 | 385 | 432 | |
| h | 60 | 60 | 70 | 70 | 90 | 90 | 90 | 90 | |
| H | α≤30° | 200 | 250 | 300 | 350 | 400 | 500 | 500 | 600 |
| 30°<α≤45° | 250 | 300 | 350 | 400 | 500 | 550 | 550 | 650 | |
| 45°<α≤60° | 300 | 350 | 400 | 500 | 550 | 600 | 600 | 700 | |
法蘭聯接方式
| 尺寸 | LSY100 200 | LSY140 | LSY160 | LSY200 | LSY250 | LSY300 | LSY350 | LSY400 | |
| D | 114(133) | 168 | 194 | 219 | 273 | 325 | 355 | 402 | |
| D0 | 160 | 200 | 225 | 252 | 315 | 365 | 395 | 460 | |
| D1 | 190 | 230 | 260 | 285 | 350 | 400 | 430 | 500 | |
| H | α≤30° | 200 | 250 | 300 | 350 | 400 | 500 | 500 | 600 |
| 30°<α≤45° | 250 | 300 | 350 | 400 | 500 | 550 | 550 | 650 | |
| 45°<α≤60° | 300 | 350 | 400 | 500 | 550 | 600 | 600 | 700 | |
| n-d | 6-Φ11 | 6-Φ11 | 8-Φ11 | 8-Φ13 | 8-Φ17 | 8-Φ19 | 8-Φ19 | 8-Φ19 | |
萬向球聯接方式
| 尺寸 | LSY100 120 | LSY140 | LSY160 | LSY200 | LSY250 | LSY300 | LSY350 | LSY400 | ||
| D | 114(133) | 168 | 194 | 219 | 273 | 325 | 355 | 402 | ||
| D0 | 200 | 250 | 300 | 365 | 365 460 |
385 460 |
460 | |||
| D1 | 225 | 278 | 328 | 400 | 400 500 |
430 500 |
500 | |||
| H | α≤30° | 400 | 400 | 450 | 450 | 550 | 650 | 650 | 700 | |
| 30°<α≤45° | 450 | 450 | 500 | 550 | 600 | 750 | 750 | 800 | ||
| 45°<α≤60° | 450 | 500 | 550 | 600 | 650 | 800 | 800 | 900 | ||
| 50°<α≤55° | 500 | 500 | 600 | 650 | 700 | 900 | 900 | 950 | ||
| 55°<α≤60° | 550 | 550 | 650 | 700 | 800 | 1000 | 1000 | 1100 | ||
| n-d | 6-Φ11 | 6-Φ11 | 8-Φ11 | 8-Φ13 | 8-Φ17 | 8-Φ19 | 8-Φ19 | 8-Φ19 | ||

高效率輸送:采用了新型的懸掛式中間吊軸承架,增大了物料運送空間,減少了物流阻力,加上小直徑,高轉速,變螺距等設計,確保順暢,快速均勻送料.
隨意性布置: 外殼采用U型槽設計便于維修,整體,無論是水平還是大傾角均可連續輸送.可直接與配套設備連接固定,無需地基基礎,充分利用空間,移動,拆裝十分方便.
多元化聯拉:進,出料口可采用法蘭連接,布袋連接,布袋吊桿連接,萬向接口連接等多種形式.
可靠的密封:外殼管的連接處設置了防滲水裝置,工藝孔也經過精心改良,避免由于雨水滲入引起管內水泥結塊而造成堵料,悶機事故的發生.
毋需添加油:由于采用了新穎的中間軸承材料,既能減摩,耐磨又能自潤滑,即使長期使用也毋需加添潤滑油,可避免油脂與水泥混合對軸套,軸所產生的副作用.
專用減速器:本公司特定制作的減速器設計先進合理,具有體積小,重量輕,扭矩大,轉速快,不漏油,無噪音等優點,并設有止退結構,完全可以適用于大傾角的推力輸送。
1、水泥螺旋輸送機結構、葉片要根據使用及水泥廠等搭配設備調節合理選型,采用接連式螺旋葉片,制造成形后螺距差小于5mm且葉片外表光滑,可確保物料運輸均勻。
2、不同型號的水泥螺旋輸送機有不同的接頭口,多以在接頭處建議使用交接法。
3、外沿硬度可達HB240,硬度和耐磨性比通常葉片提高一倍左右。
4、輸送機運行速度不宜大于2.5米/秒,為減少塊度大、磨損性大的物料對螺旋輸送機的損害,應盡量采用低速。
5、水泥螺旋輸送機減速機需采用重型設計,具備扭矩大、噪音低、不滲油等特點。


1、水泥螺旋輸送機應保證無漏料。
2、安裝基礎至少在螺旋正式安裝前20天澆灌完成,該基礎應能可靠地支撐輸送機并不因地基過小而發生螺旋輸送機的下沉和裱花,保證運轉時候有足夠的穩定性。
3、在安裝以前必須將那些在運輸途中或卸箱時粘上的塵垢的機件加以清洗。
4、相連機殼法蘭面應連接平整,機殼呢表面接頭處錯位偏差不超過2毫米。
5、機殼法蘭間允許墊石棉帶調整機殼和螺旋體長度的積累誤差。
6、螺旋體外徑與機殼間的最小間隙不得少于名義間隙的50%如需要大間隙,按用戶要求制作。
7、進出料口現場安裝應使進出料口的法蘭支承面與螺旋機的本體的軸線平行,與相聯接的法蘭應緊密貼合,不得有間隙。
